Condominium for Sale - Harbour View Gardens - D05 - Buona Vista - Harbour View Gardens 221 Pasir Panjang Road Singapore - 1 025 000 SGD - 1067261

1 025 000 SGD

Normal
YEE KOK CHONG
YEE KOK CHONG
Property Agent

Verified number: +6590600813

https://agent.sg/R008298A
Write message to Raymond

+65

Share this listing
Description

Harbour View Gardens

Country : Singapore
Type : Residential
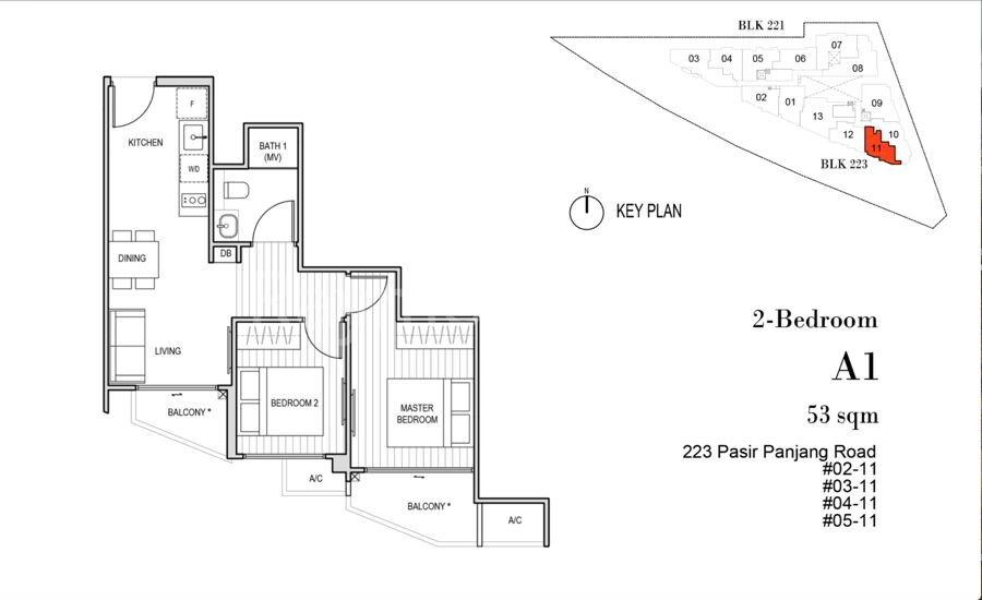
Address : 221 Pasir Panjang Road 223 Pasir Panjang Road
District : D05 - Buona Vista / West Coast
Region : South West
Tenure : Freehold
TOP Year : 2021
Units : 57
Developer : Roxy

57 Units Luxurious Freehold Development

Next to Upcoming Greater Southern Waterfront City

Mins walk to 2 MRT stations. (Haw Par Villa & Pasir Panjang)

Near to NUS/NUH/Maple Business Park/Kent Ridge/ Alexandra Retail
Centre/One North/West Coast Park /Mount Faber
2br / 2br + S / 3Br / 3br + Study/Guest

Call Developer Appointed Sales Team Raymond Yee@ *****

Estate details

Sale

Harbour View Gardens

Harbour View Gardens 221 Pasir Panjang Road, Singapore0

1 025 000 SGD

2

1

570 sqft

1067261

Facilities
Key features:
  • Balcony
  • Renovated
  • Fibre Ready
  • Greenery View
Photos of this Condo
Location of this property
More estate type list in D05 - Buona Vista