Apartment for Rent - The Rochester - D05 - Buona Vista - Rochester Drive - 5 000 SGD - 93508

5 000 SGD

Negotiable
TJOA LIE HUNG
TJOA LIE HUNG
Property Agent

Verified number: +6597705007

https://agent.sg/R020609E
Write message to

+65

Share this listing
Description

District 05, New Listing for Rent
Very High Floor,
Corner Unit, Squarish, Best Stack at the
Premier Block.
Highly privacy with No neighbours units besides and opposite.
One unit by itself.
Unblocked , Panoramic and pool view.
Bright and Windy, Unblocked view.
*****
*****
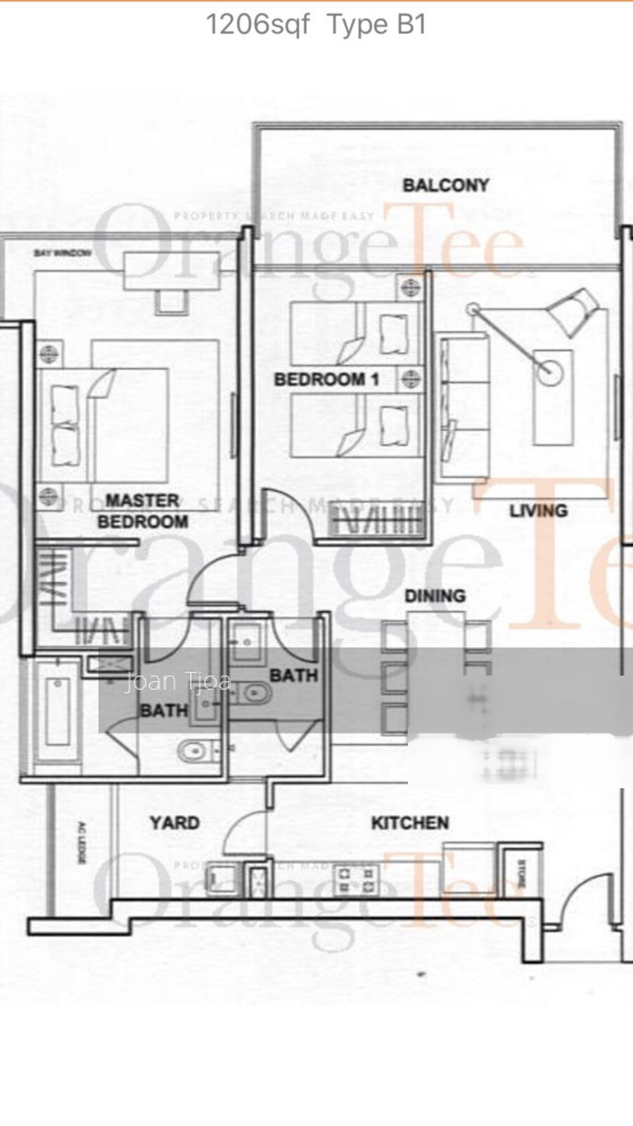
Partially furnished.
2 bedrooms with 2 bathrooms with Bathtub for master bathroom.
North South facing,
High Ceiling.
Both the Living hall and common Bedroom can access to the Balcony.
With very exclusive Private walk way towards the house with private access areas.
Washing Machine, Dryer , Refrigerator are provided.
4 lifts per each level.
View to appreciate.
Call Joan ***** for appointment.

Estate details

Rent

The Rochester

Rochester Drive33

5 000 SGD

Negotiable

2

0

Apartment

1206 sqft

4

93508

99-year Leasehold

Photos of this Condo
Location of this property
More estate type list in D05 - Buona Vista