Home.sg » D07 - Bugis » D07 - Bugis Apartment » Duo Residences

Apartment for Sale - Duo Residences - D07 - Bugis - Fraser Street - 4 066 919 SGD - 96512

4 066 919 SGD

Normal
TAN BEE CHOO
TAN BEE CHOO
Property Agent

Verified number: +6598315648

https://agent.sg/R000741F
Write message to

+65

Share this listing
Description

Call Wendy @ ***** to view actual showflat.

TOP Obtained !
DUO @ Fraser Street (next to Bugis MRT)

Integrated development comprising premium residences, 5-star hotel, grade A offices and retail services
By developer, M+S, jointly owned by Malaysia s Khazanah Nasional and Temasek Holdings.

DUO Residences has 660 premium residences (49-storey tower)
Size range 39sm to 181sm
Targeted TOP - 2017
Tenure - 99 years wef 1 July 2011
Site Area - 26,688 sm

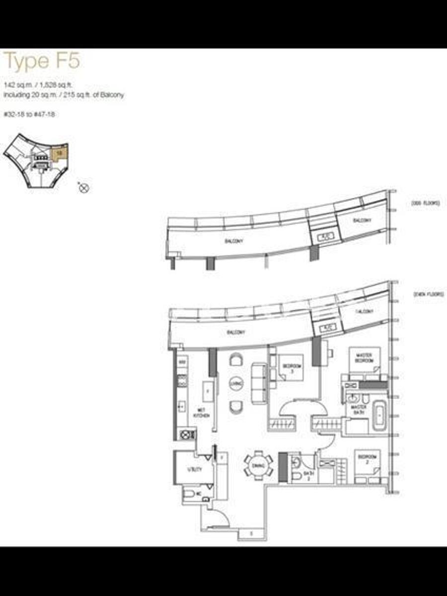
Studio ( 420 527) sqft
1 br, 1br+Study ( 538 743 )
2 br, 2br+Study ( 818 1184 )
3 bedrooms ( 1432 1722 )
4 bedrooms ( 1841 1927 )
Penthouses 2497, 2519, 3218, 3778, 4392 sqft

Design Architect - Iconic architecture by Buro Ole Scheeren (Germany)
Award Best Futura Project category at the MIPIM Asia Awards 2012, an acknowledgement that celebrates excellence and innovation in real estate development Green Mark Platinum Award for office and residential towers.

Live, work, play within an integrated development
Connectivity islandwide via MRT and expressways. DUO is served by Bugis MRT station - existing East-West and future Downtown line (which will be ready in 2015). Proposed future underground links to Gateway and Suntec City
Cultural, Heritage and Educational locale
Excellent views of city skyline / sea / Marina Bay and towards Kampong Glam
One of the tallest residential development in Bugis area
Next to shopping -Bugis Junction, Bugis



Estate details

Sale

Duo Residences

Fraser Street1

4 066 919 SGD

3

0

Apartment

1722 sqft

2361

96512

99-year Leasehold

Location of this property
More estate type list in D07 - Bugis