Semi detached house for Sale - Woo Mon Chew Road - D15 - Joo Chiat - Woo Mon Chew Road Singapore - 4 880 000 SGD - 1071498

4 880 000 SGD

Normal
LEE POH LIN
LEE POH LIN
Property Agent

Verified number: +6591917520

https://agent.sg/R051186F
Write message to

+65

Share this listing
Description

PROPNEX EMINENCE LANDED TEAM
~~~~~~~~~~~~~~~~~~~~~~~~~~~~~~
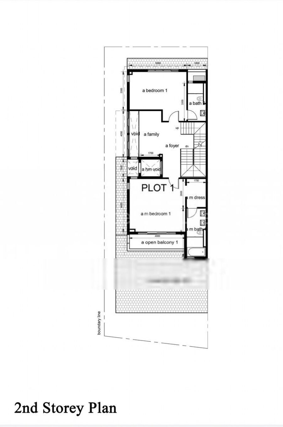
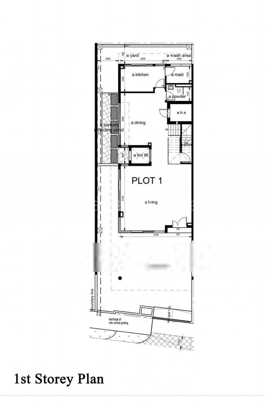
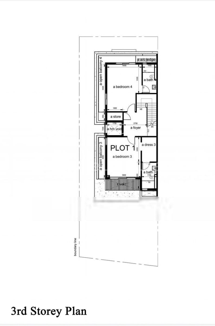
Modern 3.5sty Semi-Detached @ WMC
- Price: $4.88m
- Tenure: Freehold
- Land: 2522sf
- Built: 5000sf
- Rooms: 4 + 0 + 1
- Bath: 4

Features:
Prime district 15
Private Home Lift
Huge Living Room
Spacious Dining Area
Near Siglap Centre

Pls call GRACE LEE @ ***** to view
PropNex

Estate details

Sale

Woo Mon Chew Road

Woo Mon Chew Road Singapore0

4 880 000 SGD

4

4

2 sqft

1071498

Photos of this Landed
Location of this property
More estate type list in D15 - Joo Chiat