Home.sg » D27 - Sembawang » D27 - Sembawang Apartment » North Park Residences

Apartment for Sale - North Park Residences - D27 - Sembawang - 31 Yishun Central 1 - 941 160 SGD - 77570

941 160 SGD

Guide price
ONG SWEE KHIM
ONG SWEE KHIM
Property Agent

Verified number: +6591010096

https://agent.sg/R008451H
Write message to

+65

Share this listing
Description

D.27 North Park Residences at North Point City!

Rare Integrated mixed development with Air Con bus interchange.

Sheltered walkway to Yishun MRT. First Community Club. Shopping Mall. Yishun Library; Cinema.

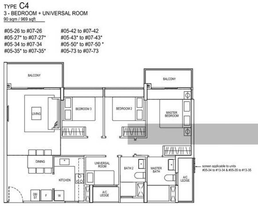
2BR, 2BR Deluxe, 3BR, 3 Trio Dual Key, 3+Universal, 4BR, 5BR.

Units moving fast.

Showflat off site, for viewing appointment:
Call : *****
Features: Swimming Pool View, Park/Greenery View
Fixtures: Cooker Hob/Hood, Air Conditioning
Area: Balcony

Estate details

Sale

North Park Residences

31, Yishun Central 131

941 160 SGD

Guide price

2

1

Apartment

786 sqft

1197

77570

99-year Leasehold

Location of this property
More estate type list in D27 - Sembawang