Home.sg » D27 - Sembawang » D27 - Sembawang Apartment » North Park Residences

Apartment for Sale - North Park Residences - D27 - Sembawang - 23 Yishun Central 1 - 1 524 440 SGD - 77567

1 524 440 SGD

Guide price
ONG SWEE KHIM
ONG SWEE KHIM
Property Agent

Verified number: +6591010096

https://agent.sg/R008451H
Write message to

+65

Share this listing
Description

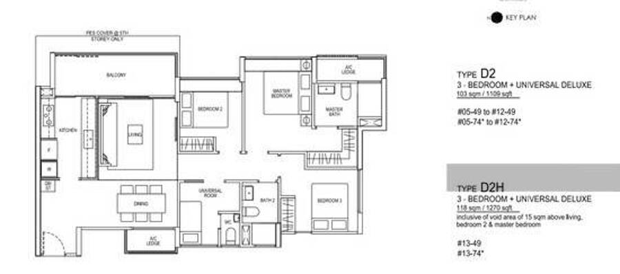
D.27 North Park Residences at North Point City!

Rare Integrated mixed development with Air Con bus interchange.

Sheltered walkway to Yishun MRT. Aircon Bus Interchange, First Community Club. Shopping Mall. Yishun Library, Cinema.

Available:
2BR, 2BR Deluxe, 3BR, 3+Universal, 4BR, 5BR.

Units moving fast.

Showflat off site, for viewing appointment:
Call : *****
Features: Swimming Pool View, Park/Greenery View
Fixtures: Cooker Hob/Hood, Air Conditioning
Area: Balcony

Estate details

Sale

North Park Residences

23, Yishun Central 123

1 524 440 SGD

Guide price

4

2

Apartment

1259 sqft

1210

77567

99-year Leasehold

Location of this property
More estate type list in D27 - Sembawang