Home.sg » D16 - Bedok » D16 - Bedok Condominium » Sea Pavilion Residences

Condominium for Sale - Sea Pavilion Residences - D16 - Bedok - Sea Pavilion Residences 494 Upper East Coast Road Singapore - 1 600 000 SGD - 1085727

1 600 000 SGD

Normal
YEE KOK CHONG
YEE KOK CHONG
Property Agent

Verified number: +6590600813

https://agent.sg/R008298A
Write message to Raymond

+65

Share this listing
Description

Sea Pavilion Residences
Country : Singapore
Type : Residential
Address : 494 Upp East Coast Rd S'pore 466522
District : D16 - Bedok / Upper East Coast
Region : East
Tenure : Freehold
TOP Year : 2023
Units 24
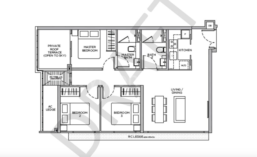
Floor Size : 441.00~1555.00 sqft
Developer : Oxley Holdings Pte Ltd

5 mins walk to upcoming Bayshore Mrt (Thomson Line)
Located in the upscale Bayshore precinct with shops, cafes, grocery stores, childcare and elderly facilities
Stone's throw to Singapore's food paradise- Bedok Hawker Foods & Along Upp East Coast Rd
Temasek Pri & Sec Sch within 1Km .Stations to Victoria School, VJC, & Tao Nan School.

Call Developer Appointed Sales Team Raymond Yee @ ***** for preview launch date, pricing, ebrochures, floorplans and financing.

Estate details

Sale

Sea Pavilion Residences

Sea Pavilion Residences 494 Upper East Coast Road, Singapore0

1 600 000 SGD

3

2

876 sqft

1085727

Facilities
Key features:
  • Balcony
  • Renovated
  • Fibre Ready
  • Greenery View
  • Pool View
Photos of this Condo
Location of this property
More estate type list in D16 - Bedok