Home.sg » D19 - Punggol » D19 - Punggol Apartment » Kingsford Waterbay

Apartment for Sale - Kingsford Waterbay - D19 - Punggol - 50 Upper Serangoon View - 1 510 511 SGD - 72313

1 510 511 SGD

Negotiable
KHIEW SIEW LAN
KHIEW SIEW LAN
Property Agent

Verified number: +6597898186

https://agent.sg/R026159B
Write message to Josephine khiew

+65

Share this listing
Description

Call Developer Sales Team 开发商指定经纪
Josephine Khiew/ERA for more information *****
website *****

Kingsford Waterbay!! Relaunch starbuy unit

All Units enjoy either the river views or pool views
Direct Access to Serangoon Park Connector

2 Bedroom From $650,000
2 Bedroom (River facing) From $743,000
3 Bedroom $893,000
3+Study from $1,090,000
3 Bedroom Dual Key from $1,011,000
4 Bedroom from $1,073,000
5 Bedroom from $1,432,000
Terrace House from $1,755,000 *with choice to convert to 4 bedroom

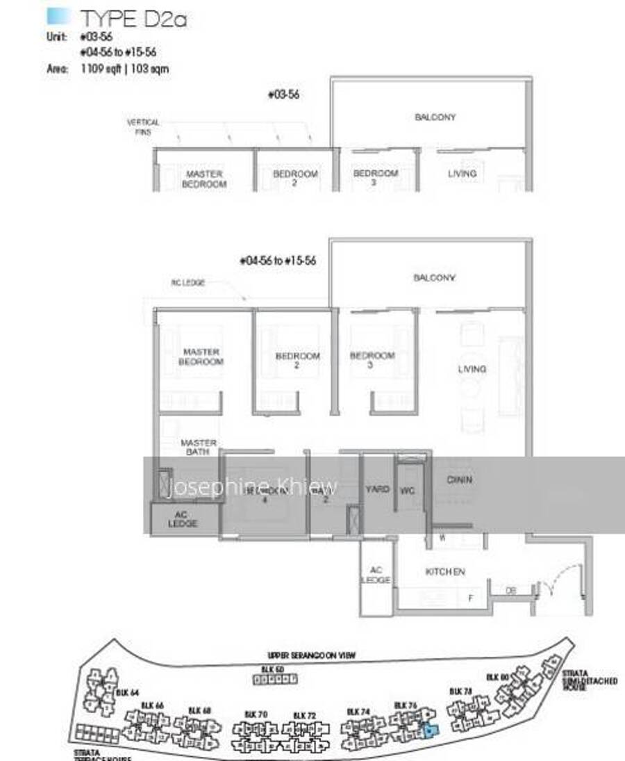
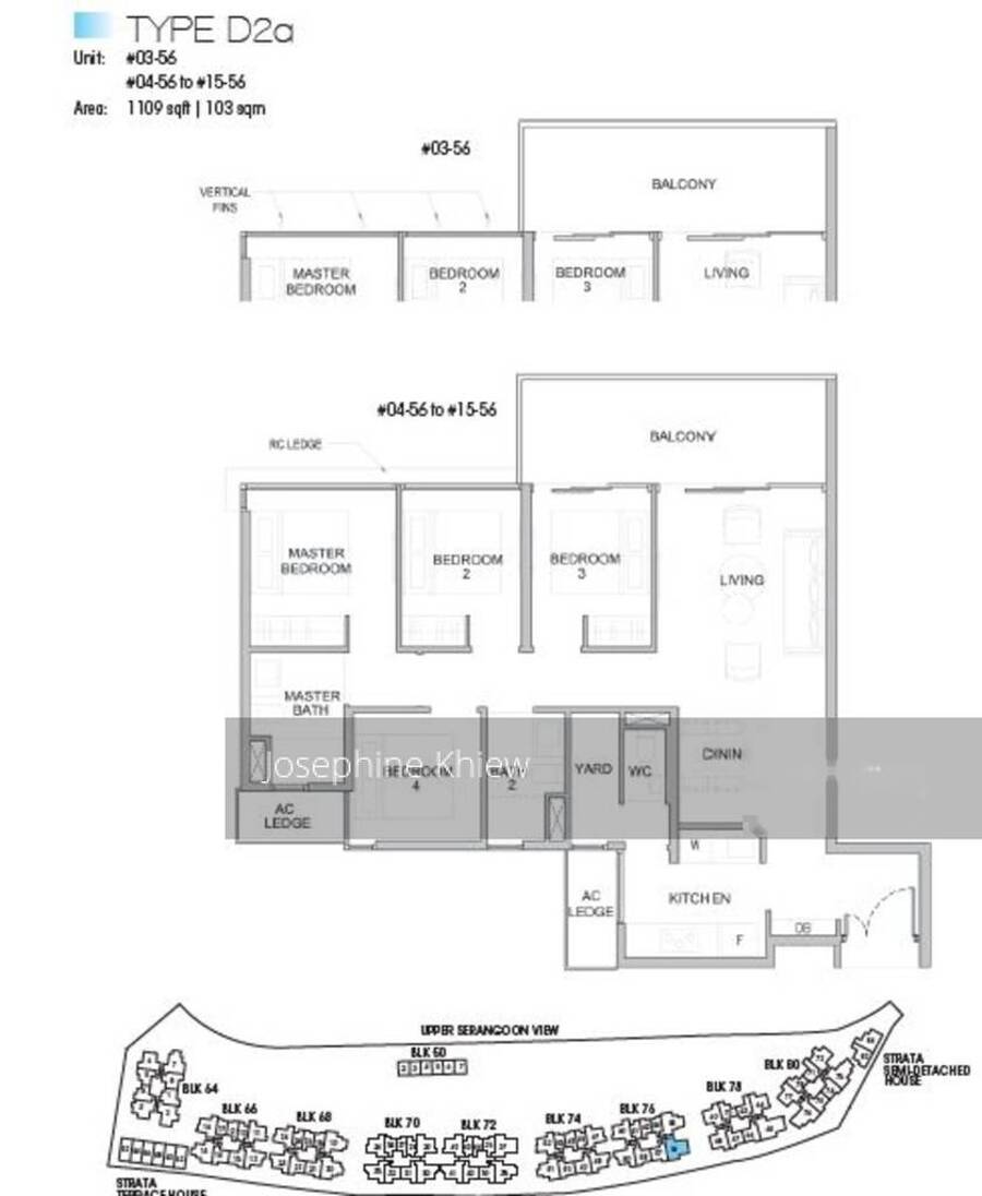
Project Name: Kingsford Waterbay
Address: Upper Serangoon View
District: D19
Developer: Kingsford Development Pte Ltd
Tenure: 99 Years
TOP: 1st December 2018
Total Units: 1,157 Residential Units, 6 Terrace House, 2 Semi-detached Home
No. Of Retail Shop: 6 Units
No. Of Storey: 9 Blocks, 16 Storey
Total: 1165 units
Site Area: 27,295.3 m2
Facilities : 1-Storey Podium/Basement Carpark, Tennis Court, Swimming Pool, Clubhouse, Childcare Centre, Communal Facilities.
Fitness Corner, Spa Creek, Lap Pool, Adventure Pool, Zen Garden, Ecological Pond, Sky Bar, BBQ Sun Deck, Aqua Gym, Outdoor Game Room, Function Deck, Rolling Lawn & Many More!!!

★DEVELOPER APPOINTED SALES AGENCY 发展商指定销售代理★
Josephine Khiew /ERA
*****
*****
*****
*****

The Glades, Sky Habitat, Sky vue, Duo Residences, Marina One, Kingsford waterbay, hillview peak, Riverbank, City Gate,EC, executive condo, D'leeden, Bedok Residences, St Partick, Marine Blue, North Park, High Park, The Amore, The Terrace, The Interlace,Westwood Residences, Brownstone EC, Yishun EC, Sol acres,commonwealth towers, corals, reflection, The crest, High Park Residences, hundred palms, seaside residences, arta, grandeur park, the glades, park riviera, clement canopy, thomson impression
Features: Swimming Pool View, Renovated, Park/Greenery View, Original Condition, Corner Unit
Fixtures: Cooker Hob/Hood, Air Conditioning, Water Heater
Area: Bombshelter, Balcony, Walk-in-wardrobe

Estate details

Sale

Kingsford Waterbay

50, Upper Serangoon View50

1 510 511 SGD

Negotiable

4

3

Apartment

1356 sqft

1113

72313

99-year Leasehold

Location of this property
More estate type list in D19 - Punggol