Home.sg » D16 - Bedok » D16 - Bedok 3S Simplified » 426 Bedok North Road

3S Simplified for Sale - 426 Bedok North Road - D16 - Bedok - 426 Bedok North Road Singapore - 240 000 SGD - 954189

240 000 SGD

Normal
LOKE WING HENG
LOKE WING HENG
Property Agent

Verified number: +6583323886

https://agent.sg/R012540J
Write message to

+65

Share this listing
Description

Open House!
Sunday, 4 November 2018!
4 - 5pm

Asking $240,000 offer in access

Blk 426 Bedok North Road For Sale!
(5 mins walk to Bedok Central)

** 3'NG'
** First Owner and simple conditions
** Few minutes stroll to Bedok Mall / MRT
** Nearby school: Fengshan Primary, Yu Neng Primary, Ping Yi Secondary, East Coast Primary and NPS International School etc...
** Seller not staying
** For November 2018, any buyer, regardless of their ethnic group and citizenship can buy
** HIP done, not bill yet. SPR kindly take note.

Please call for an exclusive viewing.

Thank you.

Vincenk Loke
*****

Estate details

Sale

426 Bedok North Road

426 Bedok North Road Singapore0

240 000 SGD

2

2

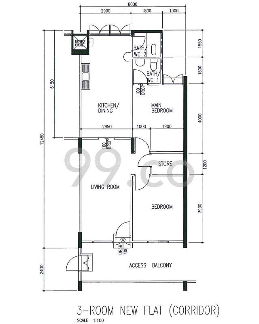
721 sqft

954189

Facilities
Key features:
  • Low Floor
Photos of this HDB
Location of this property
More estate type list in D16 - Bedok