Home.sg » D05 - Buona Vista » D05 - Buona Vista 5A » Clementi Avenue 2

5A for Sale - Clementi Avenue 2 - D05 - Buona Vista - Clementi Avenue 2 120336 - 680 000 SGD - 95172

680 000 SGD

Normal
CHEN ZHANGXUAN
CHEN ZHANGXUAN
Property Agent

Verified number: +6597808518

https://agent.sg/R057623B
Write message to

+65

Share this listing
Description

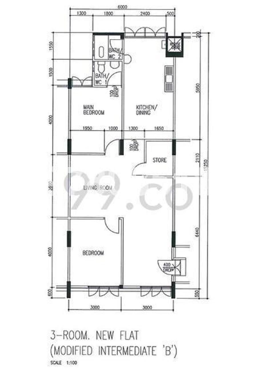
**336 CLEMENTI AVE 2 5I for sale!!**Call Shane at ***** for viewing today!# PREMIUM 5I APARTMENT# Rare Well-maintained Well renovated 5I Apartment# Well Maintained# Corner unit/Door to door# Low Floor# Approximately 119sqm/1290sqft approx.# All Race Eligible# No west sun# Rare unit with balcony# Bright and Windy# Quiet Environment# Lift Level# Well maintained, well renovated# Extremely Spacious & Squarish Living Area# Possible for 1 more room# Suitable for Multi generation families# Sell Vacant# Normal completion pure selling, can contra!# Serious and motivated seller# Market/Neighbourhood/Amenities stone throw away# Eateries literally stone drop/throw away# Buses to MRT# Good neighbourhood# Rare unit# Not to be missed. Rare 5I in the cluster# Owner will consider any serious offersCall Shane at ***** for viewing today!

Estate details

Sale

Clementi Avenue 2

Clementi Avenue 2 120336336

680 000 SGD

3

0

5A

1280 sqft

531

95172

99-year Leasehold

Location of this property
More estate type list in D05 - Buona Vista