Condominium for Rent - Cube 8 - D11 - Novena - Cube 8 376 Thomson Road Singapore - 3 700 SGD - 993958

3 700 SGD

Normal
LEE KAI CHEW
LEE KAI CHEW
Property Agent

Verified number: +6597516045

https://agent.sg/R047163E
Write message to

+65

Share this listing
Description

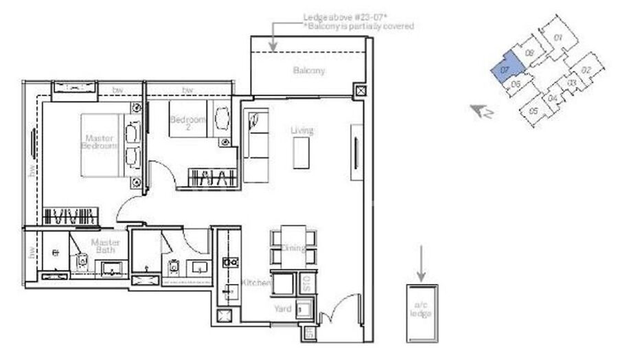
> Good layout, panoramic view from master bedroom. Above 20th floor
> Open concept kitchen
> available 1st Feb 18
> 6 stunning sky terraces
> Located in Core Central Region with good connectivity to Orchard and CPD area.
> 2 stops to Novena Square Shopping Mall , United Square Shopping Mall, Novena MRT.
> Short walk eateries, shops and NTUC supermarket (Zhongshan Park) that plys along Balestier Road.
> Quick access to PIE , Orchard and Business District area.

Serious Landlord!! Call Wilson @***** to find out more.

Estate details

Rent

Cube 8

Cube 8 376 Thomson Road, Singapore0

3 700 SGD

2

2

926 sqft

993958

Facilities
Key features:
  • Balcony
  • High Floor
  • Greenery View
  • High Ceiling
Photos of this Condo
Location of this property
More estate type list in D11 - Novena