Semi detached house for Sale - Victoria Park Road - D10 - Bukit Timah - Victoria Park Road Singapore - 4 200 000 SGD - 1067241

4 200 000 SGD

Normal
YEE KOK CHONG
YEE KOK CHONG
Property Agent

Verified number: +6590600813

https://agent.sg/R008298A
Write message to Raymond

+65

Share this listing
Description

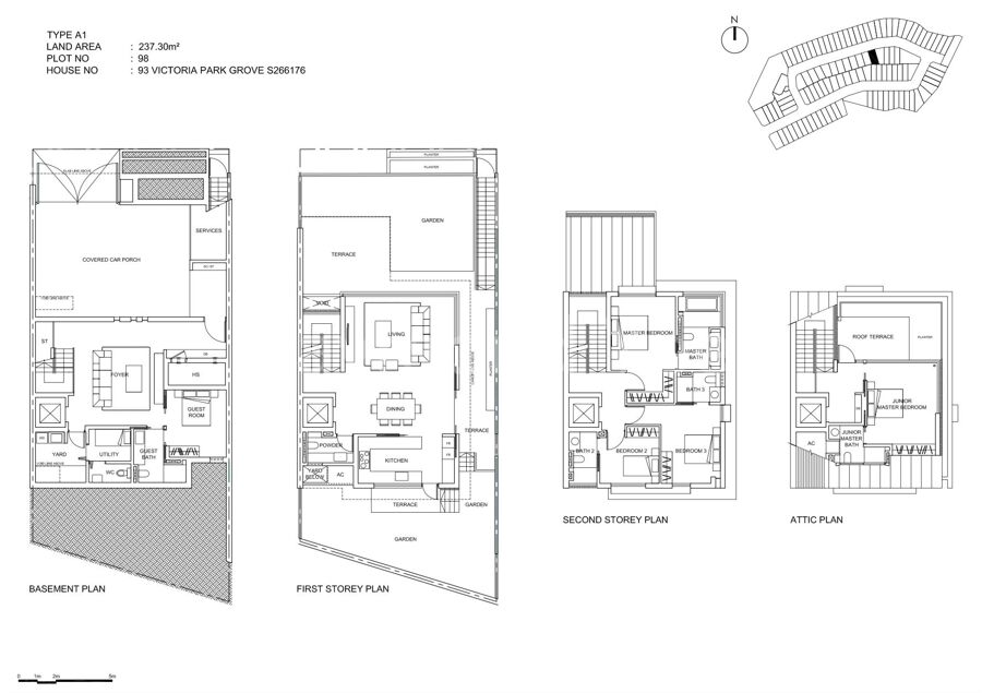
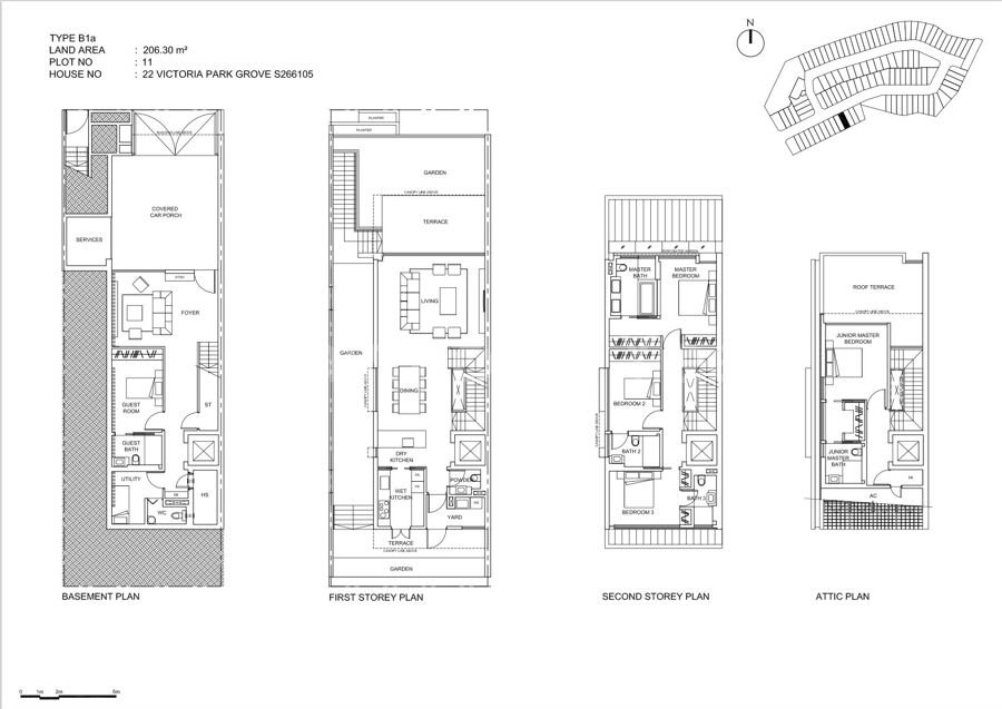
Victoria Park Villas

Location : Along Victoria Park Road/Coronation Road
Developer : Athens Residential Development Pte Ltd
Tenure : 99 years wef 23 September 2013
Site Area : 37,440.7 sqm (est. 403,008 sqft)
Expected TOP Date : 31 December 2018
Total no. : 106 semi-detached houses 3 bungalows

Landed housing development comprising 106 units of 2-storey semi-detached dwelling house with a basement and attic and 3 units of 2-storey detached dwelling house with a Basement and Attic (total: 109 units) with Open Space.

Call Developer Appointed Sales Team Raymond Yee @ ***** for unit availability ,prices and appointment to view show units.

Estate details

Sale

Victoria Park Road

Victoria Park Road Singapore0

4 200 000 SGD

4

5

2 sqft

1067241

Facilities
Key features:
  • Balcony
  • Renovated
  • Fibre Ready
  • Greenery View
  • Maid's Room
  • Utility Room
  • High Ceiling
  • Patio / PES
  • Study Room
Location of this property
More estate type list in D10 - Bukit Timah