Semi detached house for Sale - Jalan Jelita - D10 - Bukit Timah - Jalan Jelita Singapore - 9 120 000 SGD - 1029998

9 120 000 SGD

Normal
CHUA TECK KWAN
CHUA TECK KWAN
Property Agent

Verified number: +6582686817

https://agent.sg/R048711F
Write message to Johnny Chua

+65

Share this listing
Description

Prime D10 Brand New Modern Corner Semi-D Pair with Beautiful House Numbers

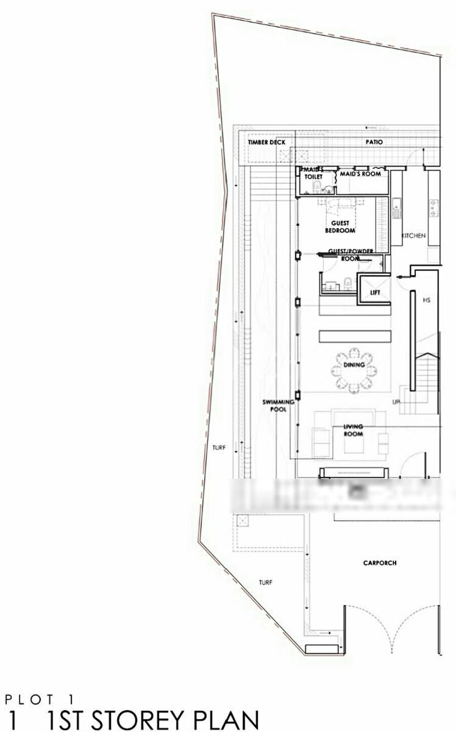
Plot 1
Land: 4011sqft
Built-Up: 5090sqft

Plot 2
Land: 3892sqft
Built-Up: 5380sqft

1st Floor:
Spacious Living & Dinning Areas
Dry & Wet Kitchen
Granny's/Guest Room
Helper's Room

2nd Floor:
Master Room
Spacious Bedroom

3rd Floor:
2 Spacious Bedrooms
Roof Terrace with Unblock Views

2.5 Storey + Attic
All Rooms Ensuites
Large Built-Up Area
Semi-D Only Landed Estate
Next to GCBs Estate
Good Size Swimming Pool
Private Lift Serving Every Floors
High Ceiling with Double Volume
Bright & Airy House with Lots of Natural Lights
Car Porch for 2 cars

Excellent Location
Minutes to Holland Village & Cold Storage Jelita
Tranquil & Quiet Neighbourhood

Near Good Schools:
Henry Park Pri
Methodist Girls' Sch
Raffles Girls Pri

***Beautiful Modern Houses Not To Miss!!!***

*Also For Rent @ $18.5K Negotiable

More Houses Available for Sale:
*****

Hurry! Contact Johnny ***** to view these Beautiful Houses Now, Thanks!

Other Brand New Semi-D Available

D10

Beautiful Brand New Semi-Ds with Basement & Pool in Prime Ladyhill/White House Park $7.8M
L: 2500sqft
B: 5290sqft

Modern Brand New Semi-Ds with Basement & Pool in Prime Nassim/White House Park $7.9M
L: 2160sqft
B: 5125sqft

Trendy Brand New Semi-Ds with Basement & Pool in Prime Nassim/Ladyhill $8.6M
L: 2611sqft
B: 5802sqft

*Disclaimer: Informations posted regarding these listings are subject to final survey

More Houses:
Holland Rd/Jln Jelita/Jln Tenang/Coronation/Maryland Dr/Greenleaf/Paterson/Tanglin/Nassim/One Tree Hill/Jln Tupai/Jln Kelawar/Jln Arnap/Lengkok Merak/Grange Garden/Angulia Park/Cuscaden/Tomlinson/Orange Grove/Lady Hill/Anderson/Ardmore Park/Fernhill/Stevens/Dalvey Estate/White House Park/Margoliouth/Lewis/Robin/Tanglin/Rochalie Dr/Nathan/Cable Rd/Jervois Hill/Mt Echo Park/Bishopsgate/Chatsworth/Ridley Park/Orchard

Estate details

Sale

Jalan Jelita

Jalan Jelita Singapore0

9 120 000 SGD

6

6

4 sqft

1029998

Facilities
Key features:
  • Balcony
Photos of this Landed
Location of this property
More estate type list in D10 - Bukit Timah