Home.sg » D19 - Punggol » D19 - Punggol Condominium » Jewel @ Buangkok

Condominium for Rent - Jewel @ Buangkok - D19 - Punggol - Compassvale Bow - 4 899 SGD - 126493

4 899 SGD

Negotiable
ARCHIVE LISTING - For similar properties contact the advertiser
TRICIA LIM SUAT IMM
TRICIA LIM SUAT IMM
Property Agent

Verified number: +6596462175

https://agent.sg/R013655J
Share this listing
Description

NEW Listing for RENT!
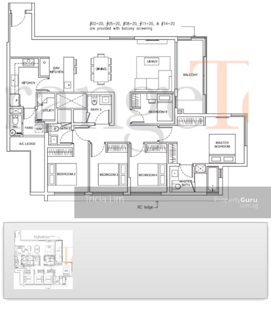
BRAND New 5 Bedroom Condo, 1636sf,
Obtained T.O.P
Walking Distance to Buangkok MRT station.

Can be Rented Furnished or Unfurnished.

High Floor, Pool View, Unobstructed Balcony View.
Master room Plus 1 Junior Master room, Ensuite.
3 common bedroom.

Renting WHOLE unit Only.

Available Immediately.

Call, WhatsApp Tricia now for immediate viewing:
*****

Estate details

Rent

Jewel @ Buangkok

Compassvale Bow85

4 899 SGD

Negotiable

5

4

1636 sqft

2017

126493

99-year Leasehold

Unfurnished

High

Facilities
Key features:
  • Balcony
  • Jacuzzi
Amenities:
  • Barbeque Area
  • Gymnasium room
  • Playground
  • Tennis courts
  • Clubhouse
  • Swimming pool
  • Basement car park
  • Pool Deck
  • 24 hours security
  • Function room
  • Lap pool
  • Spa pool
  • Wading pool
  • Fitness corner
  • Lounge
  • Reflexology Path
  • Jogging track
  • Adventure park
Location of this property
More estate type list in D19 - Punggol