Apartment for Sale - Whitehaven - D05 - Buona Vista - Whitehaven 332 Pasir Panjang Road Singapore - 985 000 SGD - 1068264

985 000 SGD

Normal
NEO BAN LAM
NEO BAN LAM
Property Agent

Verified number: +6598630447

https://agent.sg/R042033Z
Write message to

+65

Share this listing
Description

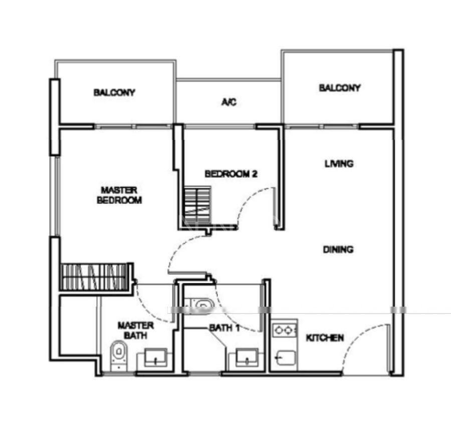
1 + Study Unit ( 538 Sqft ) For Sale

Brand New!! Freehold

** Quiet Facing, Spacious Living

** Functional Layout, Good Size Bedroom

** Balcony at Both Living and Master Bedroom

** Two Bathrooms

** Walking Distance to How Par Villa MRT

** Call For Viewing Appointment

Alan Neo
H *****
E *****
W *****

Estate details

Sale

Whitehaven

Whitehaven 332 Pasir Panjang Road, Singapore0

985 000 SGD

2

2

538 sqft

1068264

Photos of this Condo
Location of this property
More estate type list in D05 - Buona Vista